
Glendale: Two-story Single Family Dwelling Design on a Vacant Lot

Sunland: Addition to an Existing Single Family Dwelling For a Day Care
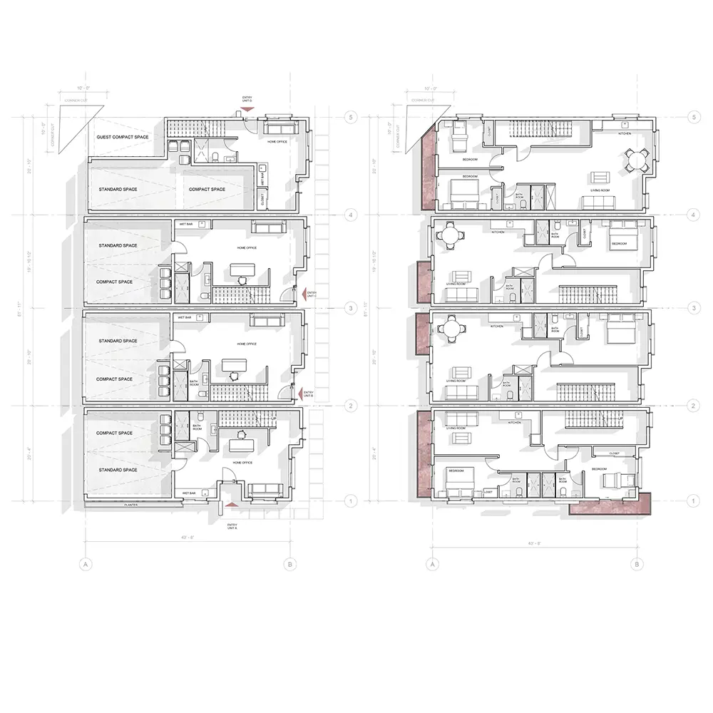
Los Angeles: Four townhouses on a small subdivision vacant lot
Project
Townhouses
Location
Los Angeles
Area
5,430 SQ. FT.
Category
New townhouses
Design by: Urban Unit for Domus International Group
The project begins with the subdivision of a spacious lot into four individual parcels, each carefully designed to house a single-family residence. These residences are a testament to our commitment to quality and design, featuring modern architecture, efficient layouts, and top-notch finishes.
Stage: Ready for permit
Location: Los Angeles, California
Lot Size: 5.430 SQ. FT
Design and CD By: UU for Domus International Group
Check our other Architectural
projects
- Client
- Los Angeles
- Website
- View website






